San Miguel de Salinas
245,000€
Full Description
(Villas Fox REF: 1574) 3-BEDROOM TOWNHOUSE ON 2 FLOORS WITH PATIO, SOLARIUM AND GARAGE, SAN MIGUEL DE SALINAS TOWN CENTRE. Constructed floor size = 223.27 m2 Plot size = 135.00 m2 Year of construction = 1970 * 15 minutes drive to beach
* 2 airports within 45 minutes drive
* 360 degree virtual tour or photos available on our website
* A video of this property is available on the Villas Fox Youtube Channel
* Direct listing with Villas Fox
* Exclusive to Villas Fox clients
* Garage
* Near bars and restaurants
* Near golf courses
* Near medical centre
* Near public transport
* Near schools
* Near supermarket
* Private parking for one car
* Separate kitchen
* Southeast-facing
A fabulous traditional Spanish town house in the wonderful town of San Miguel de Salinas, just a 2 minute walk to the church square! Built on two levels with a private solarium, integral garage, separate kitchen with adjacent tiled patio. The upper floor is reached both via an elegant internal stairway, or via an external staircase from the rear patio. There is a laundry room on the terrace off the upper floor and another external staircase which leads to the solarium. There is a store room on the solarium too.
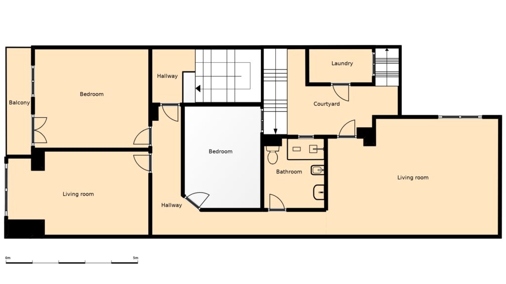
The ground floor comprises entrance hall with fireplace, hallway, bathroom, kitchen, garage and external patio. The upper floor comprises lounge area, bathroom, 3 large double bedrooms and a terrace with laundry room. The main bedroom also has access to a south-east-facing balcony facing the street, where you can sit and enjoy the sun, a book, a drink or all three!
You will notice from the plans provided that both the upper lounge and the lower kitchen which are directly above one another have a very generous floor size of 22.25 square metres!
We have provided a walk-through video which will explain the layout better! This is a lovely home which offers plenty of space in a great location. Available exclusively from Villas Fox!
This fantastic home is offered for sale by Villas Fox, having been appointed directly by the owners. We have by far the best selection of properties in the San Miguel de Salinas area. Our office is on the San Miguel ring road (Ronda Oeste) between the Repsol petrol station and the Masymas supermarket.
San Miguel de Salinas
San Miguel de Salinas is a very popular Spanish town just 15 minutes drive from the beaches of Mil Palmeras, Campoamor, Cabo Roig, La Zenia, Torrevieja, La Mata, Guardamar etc and surrounded by beautiful countryside which includes citrus and almond groves and the national park of Sierra Escalona right on our doorstep. You can walk and cycle for miles along the canal which runs right next to the town.
There are a great variety of bars and restaurants, both Spanish and international (the annual tapas run event is very popular!). If you are looking for a holiday destination or a place to live all year round, San Miguel is a great choice as it has all amenities (excellent primary and secondary schools, banks, health centre which never closes, 3 pharmacies, large outdoor swimming pool, football and athletics stadium, 5-a-side football pitch, tennis courts, padel courts, basketball courts, petanca, crown green bowls etc) and maintains the same rhythm throughout the year (ie not too busy in the summer, and not too quiet in the winter).
The pace of life is gentle and relaxing, and prices in the bars tend to be more reasonable than the coast. The weekly Wednesday street market is a great opportunity to stock up on locally grown fresh fruit and vegetables, hams, cheeses, olives, clothes and shoes etc, before having a drink and tapas in one of our friendly tavernas!
There is a good local taxi service and buses run several times daily to Torrevieja, Orihuela and Murcia. Alicante and Murcia airport are both approx 40 mins drive away. Internet services are generally fast (fibre-optic) and reliable. San Miguel is a place where you can enjoy a taste of traditional Spanish life and culture, whilst being close enough to the coast to enjoy all the great things the Costa Blanca has to offer. ¡Bienvenidos a San Miguel de Salinas!
Please note that prices shown are exclusive of sales tax (in Alicante 10%, or 8% for Spanish buyers under the age of 35) and notary, registry and solicitor costs (typically 2,500-4,000 euros). If the property is a new-build (obra nueva) an additional 1.5% AJD tax is payable. All information given is a guide only. Properties can be reserved by payment of a reservation deposit, and signing of a reservation contract. Any furniture or electrical items included in the sale are sold as second-hand items without guarantee unless otherwise stated. The prices are INCLUSIVE of agent fees, ie the buyer does not pay an estate agency fee when purchasing with Villas Fox.
We are proud members of APIAL (Asoci-cion de Agentes de la Propiedad Inmobiliaria y Agentes Inmobiliarios de la Provincia de Alicante) which is an official register of professional estate agents that are properly insured, qualified, experienced and fully legal, for your protection.
Features
- 15 minutes drive to beach
- 2 airports within 45 minutes drive
- 360 degree virtual tour or photos available on our website
- A video of this property is available on the Villas Fox Youtube Channel
- Direct listing with Villas Fox
- Exclusive to Villas Fox clients
- Garage
- Near bars and restaurants
- Near golf courses
- Near medical centre
- Near public transport
- Near schools
- Near supermarket
- Private parking for one car
- Separate kitchen
- Southeast-facing
Contact Us
San Miguel Property
Calle Pablo Picasso 9, San Miguel de Salinas
Alicante
03193
T: +34 965 720 198
E: info@villasfox.com





























































